客製各種產業自動包裝機 歡迎洽詢更多資訊影片 SH4030 SH4030全自動紙盒成型機 全自動紙盒折盒機 國望- 卷筒紙分切機 一鍵啟動 D150 D170卷筒紙分切機 一鍵啟動 T106Q自動平軋機(BOBST系統) R106Q 自動平軋機(財順系統) R106Y 自動燙金機 自動包裝機 HHZ-80/120/ 食品藥品 鳳梨酥糕餅 牙刷牙膏 各式產品 自動包裝機 全自動折疊盒製盒機 ZR-800 全自動折疊盒製盒機 (攤平書型盒.壓平硬盒) 康得新覆膜上光機 KMM-1050/1220D 康得新 全自動高速立式覆膜上光機 (水性、預塗二用) KMV全自動平面上光機 全自動多道上光油機 (取代亮P霧P覆膜 符合環保外銷) 正博手提袋機械 正博ZB-360RS/ ZB-460RS 卷筒紙全自動手提袋機 (可加裝機上印刷單元) 正博ZB 1260S-450 單張式全自動手提袋機 (上口黏貼式) 正博ZB 1080S-380 單張式全自動手提袋機 正博ZB 1200C S-430 單張式手提袋製袋機 正博ZB 1200C-430
單張式手提袋製袋機 正博ZB 60B手提袋糊底機 正博ZB 50B-2手提袋糊底機 正博ZB 60S手提袋自動底卡機 府中天地蓋成型機械 KZM-A660A 府中全自動標準型成型機 KIIIZS-A380 府中全自動天地蓋成型機 NB2-600 府中半自動上膠機 iPhone直角盒開槽機械 SH-5055 半自動聯線天地蓋成型機 全折耳折到底直角盒 SH-500 半自動天地蓋成型機 全折耳折到底直角盒 全智能製盒機 540A全智能製盒機 全自動紙袋貼手把機 FY-88 全自動紙袋貼手把機 自動機器手臂 蜘蛛手 連續不間斷機器手臂 工作手臂 局部上光機 全自動網版印刷機 1020AG 全自動吊牌穿繩機 ST180T 秤重收縮膜纏繞機 MH-FG-2000BP ................ 盛浩國際有限公司 新北市中和區 立德街178號5樓 TEL:02-2228-1144 FAX:02-2248-1144 楊經理886-932-221065 楊先生886-975-871330![]()
*規格如有變動恕不另行通知
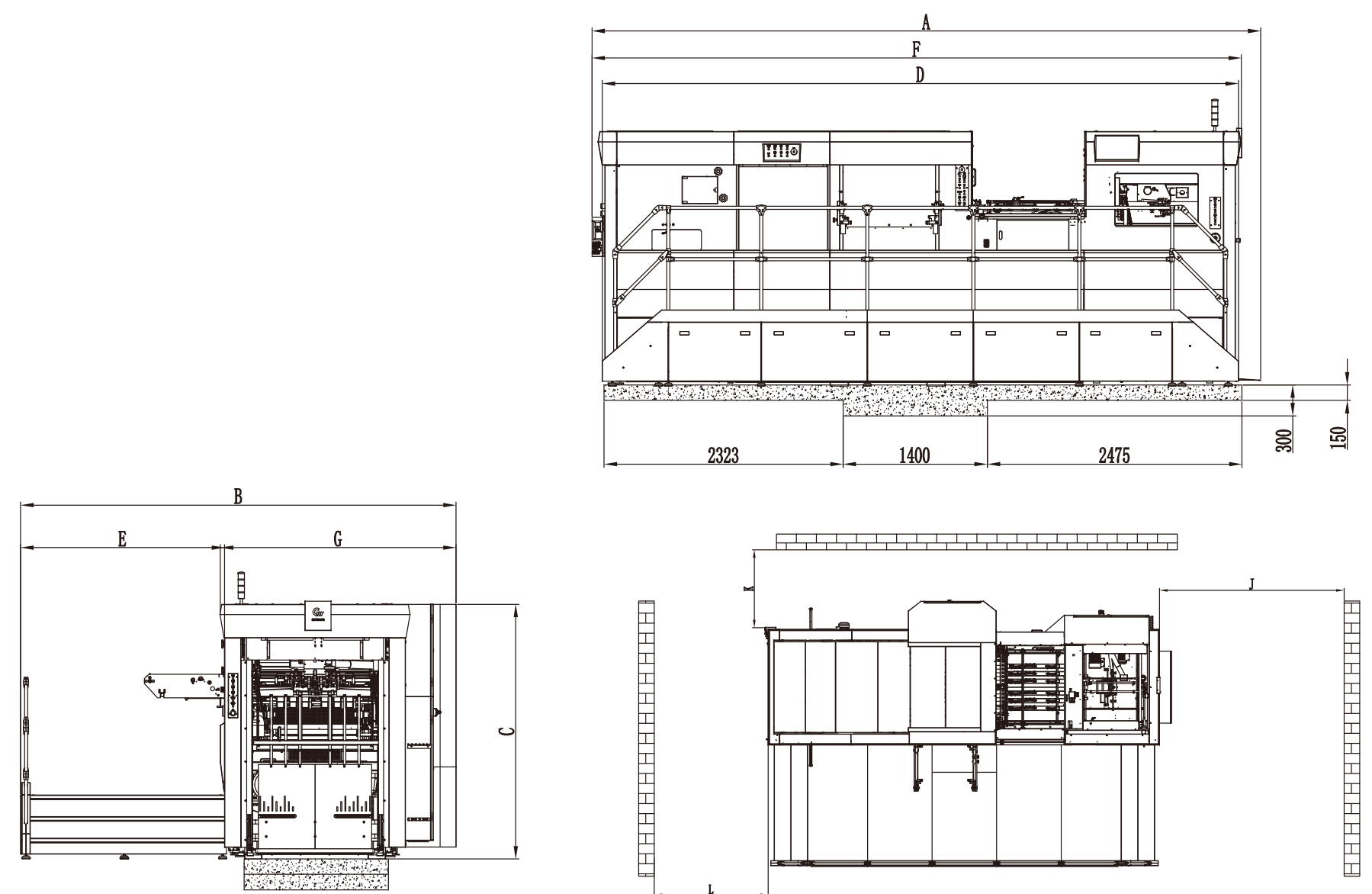
T106Q 自動平軋機(BOBST系統)
Automatic die-cutting machine with stirpping
清廢自動模切機 (旋開牙咬口)
(Double cam gripper bar)

該設備結合新的技術優勢,咬紙採用旋開牙咬紙技術,間隙箱
配置日本進口三共,機器在運作中出現的驟停更加平穩可靠。清廢框採
用氣動上、下升降功能,清廢板框具有標配快鎖裝置及中心線定位功
能,可使預備操作更加快速方便。操作螢幕採用19 吋高清LED 觸控
屏,可使複雜的設定變得簡潔直觀,能大幅提升設備運作效率。輔助收
紙台採用自動收紙功能。1.可選配(馬貝格)飛達,幾乎適用於所有紙類。
(包含卡紙、瓦楞紙等特殊材料)飛達,可平穩輸送材料。
2.日本小森公司提供旋開牙技術,參與共同製造整個系統,旋開牙技術能精準的控制加速與減速。牙排的移動能受到準確的控制,適用於更廣泛的紙張範圍以及更高的速度。
3.凸輪與鏈條單獨控制,自動潤滑系統透過觸控螢幕可在系統中調節加油時間以及加油量。
4.T 型系列配置日本三共間隙箱。
5.全清廢系統實現將咬口廢紙邊料與產品分離,在收紙上部完成二次開牙,將廢紙邊料完美脫落於輸送帶上,快速排出至機器傳動側外。
6.本機採用於知名品牌電氣元件,包括PILZ 安全繼電器,日本和泉繼電器,施耐德變頻器和空氣開關。
7.模切板框與模切下墊板採用汽缸鎖定,避免 上、下板框鎖定安裝不到位的情況,有效避免人為操作失誤造成的損失。
8.清廢與輸紙部位採用19 吋高清觸控屏,收紙部位採用10.4高清觸控螢幕。所有的設定以及功能均可透過觸控輕鬆實現基於對設備的特別認知,研發出獨特的操作與控制系統,簡單、直觀、易操作。
影響機器速度幾個因素:原材料,膠水和操作者的熟練程度。 規格如有變動恕不作另行通知

*
