客製各種產業自動包裝機 歡迎洽詢更多資訊影片 SH4030 SH4030全自動紙盒成型機 全自動紙盒折盒機 國望- 卷筒紙分切機 一鍵啟動 D150 D170卷筒紙分切機 一鍵啟動 T106Q自動平軋機(BOBST系統) R106Q 自動平軋機(財順系統) R106Y 自動燙金機 自動包裝機 HHZ-80/120/ 食品藥品 鳳梨酥糕餅 牙刷牙膏 各式產品 自動包裝機 全自動折疊盒製盒機 ZR-800 全自動折疊盒製盒機 (攤平書型盒.壓平硬盒) 康得新覆膜上光機 KMM-1050/1220D 康得新 全自動高速立式覆膜上光機 (水性、預塗二用) KMV全自動平面上光機 全自動多道上光油機 (取代亮P霧P覆膜 符合環保外銷) 正博手提袋機械 正博ZB-360RS/ ZB-460RS 卷筒紙全自動手提袋機 (可加裝機上印刷單元) 正博ZB 1260S-450 單張式全自動手提袋機 (上口黏貼式) 正博ZB 1080S-380 單張式全自動手提袋機 正博ZB 1200C S-430 單張式手提袋製袋機 正博ZB 1200C-430
單張式手提袋製袋機 正博ZB 60B手提袋糊底機 正博ZB 50B-2手提袋糊底機 正博ZB 60S手提袋自動底卡機 府中天地蓋成型機械 KZM-A660A 府中全自動標準型成型機 KIIIZS-A380 府中全自動天地蓋成型機 NB2-600 府中半自動上膠機 iPhone直角盒開槽機械 SH-5055 半自動聯線天地蓋成型機 全折耳折到底直角盒 SH-500 半自動天地蓋成型機 全折耳折到底直角盒 全智能製盒機 540A全智能製盒機 全自動紙袋貼手把機 FY-88 全自動紙袋貼手把機 自動機器手臂 蜘蛛手 連續不間斷機器手臂 工作手臂 局部上光機 全自動網版印刷機 1020AG 全自動吊牌穿繩機 ST180T 秤重收縮膜纏繞機 MH-FG-2000BP ................ 盛浩國際有限公司 新北市中和區 立德街178號5樓 TEL:02-2228-1144 FAX:02-2248-1144 楊經理886-932-221065 楊先生886-975-871330![]()
*規格如有變動恕不另行通知
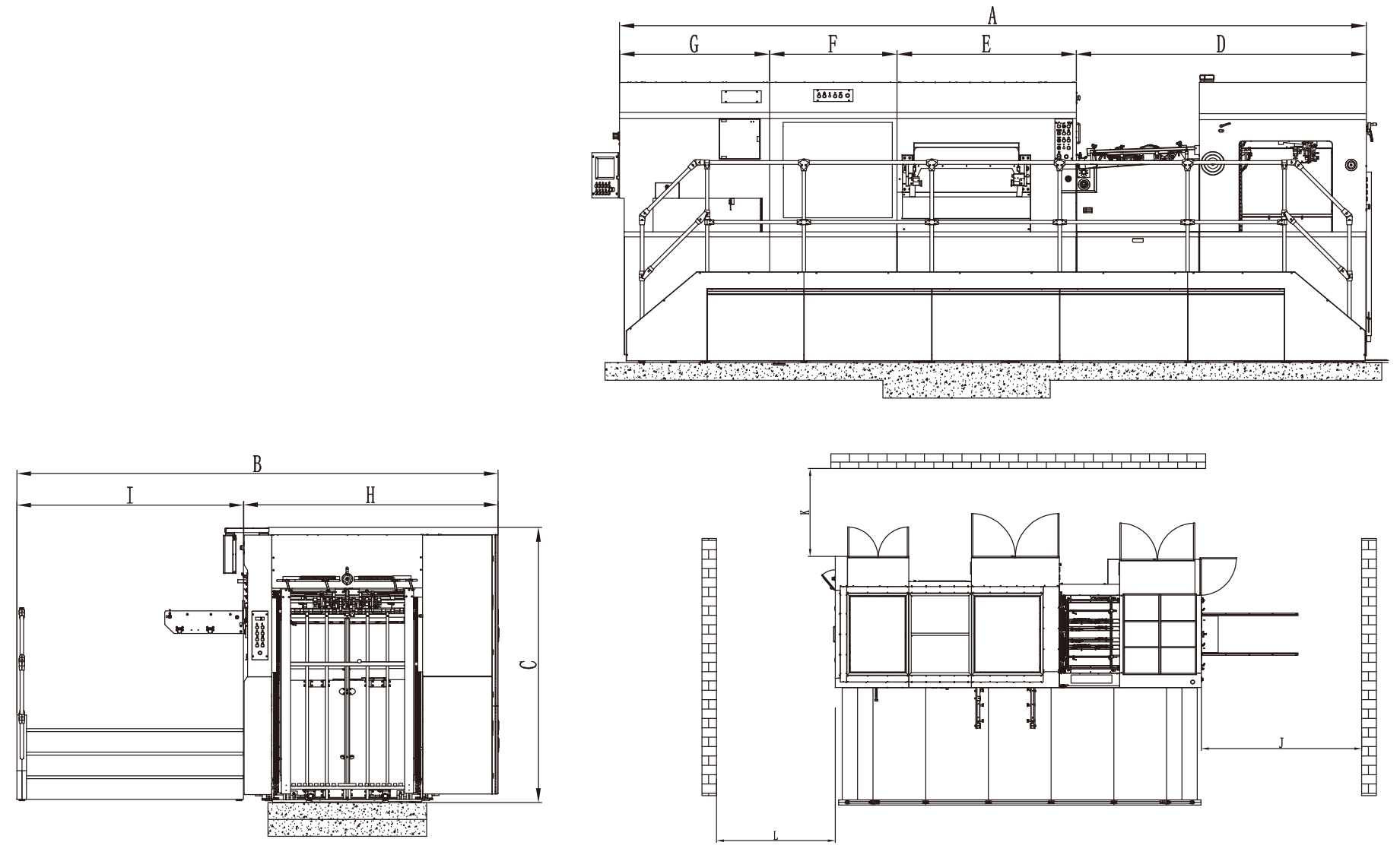
R106Q 自動平軋機 財順系統 清廢自動模切機
Automatic die-cutting machine with stripping
該機主要用於印刷包裝工業中的紙盒、紙箱、商標的模切、壓痕和冷壓或凹凸等,特別是各種高級精細的印刷品、如煙盒、酒盒、禮品盒、小家電盒、化妝品盒等,均可在本機上進行模切凹凸壓痕,以獲得富於立體感,精緻美觀的印刷製品。
清廢部分
1. 清廢上框採用氣動上,下升降功能。
2. 清廢中框採用中心定位,快速鎖板裝置。
3. 有效解決大面積清廢(高承載)產品。清叼口(選配)
全清廢系統實現將咬口廢紙邊料與產品分離,在收紙上部完成二次開牙,將廢紙邊料完美脫落於輸送帶上,快速排出至機器傳動側外部。收紙部分(選配)
1: 收紙無縫,不間斷對接
2: 電動捲簾式收紙方式
影響機器速度幾個因素:原材料,膠水和操作者的熟練程度。 規格如有變動恕不作另行通知

*
